Przytulne w niskim bloku z cegły. 3 pokoje. Balkon - Sprzedane

Mieszkanie na sprzedaż
290 000,00 PLN , Pow. 58,15 m2
Typ nieruchomości:
Mieszkanie
Powierzchnia:
58,15 m2
Typ transakcji:
sprzedaż
Liczba pokoi:
3
Lokalizacja:
Pabianice , Jędrzeja Śniadeckiego
Rok budowy:
1969
Piętro:
3 na 4
Numer oferty:
MSN598759
Cena za m2:
4 987,10 PLN
Biuro Nieruchomości ma przyjemność zaprezentować Państwu wyjątkowe, przytulne mieszkanie do własnej aranżacji - remontu, bądź tylko odświeżenia. Zlokalizowane w Pabianicach, osiedle "Piaski", przy ulicy Śniadeckiego.

DOSTĘPNE WYŁĄCZNIE U NAS

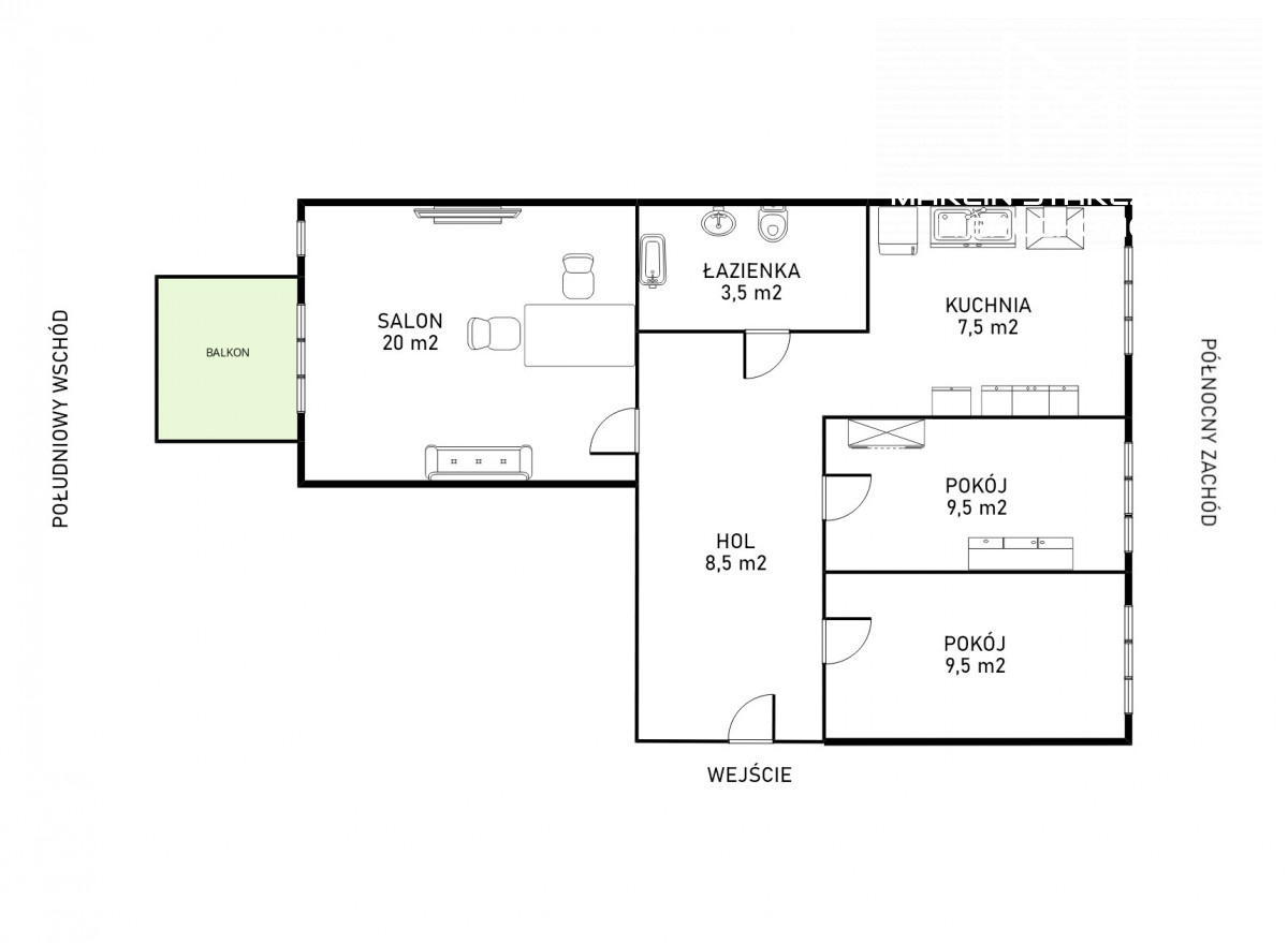
Mieszkanie mieści się na 3 piętrze w 4 piętrowym bloku z cegły. Posiada 58,15m2 powierzchni użytkowej i składa się z 3 pokoi, kuchni, łazienki z ubikacją oraz przedpokoju.
Do nieruchomości przynależy balkon oraz 5 metrowa komórka lokatorska.

Mieszkanie jest przestronne i w pełni rozkładowe, a wszystkie media są miejskie.

Z dużego przedpokoju o powierzchni 8,5m2, wchodzimy bezpośrednio do salonu 20m2, sypialni 9,5m2, małego pokoju 9,5m2, kuchni 7m2 oraz łazienki 3m2.

Okna są plastikowe, a na podłodze dębowy parkiet w dobrym stanie.

Blok położony wewnątrz osiedla z dala od ruchliwej ulicy, dzięki czemu panuje przyjemna cisza.

Stan prawny, to spółdzielcze własnościowe prawo do lokalu z Księgą Wieczystą bez obciążeń.
 Można finansować przy użyciu kredytu hipotecznego.

Wirtualny spacer po nieruchomości:
https://beta.walksee.pl/tour-9425ff69f4c544af85259dd996ced4c7.html

Polecam to mieszkanie i zapraszam na prezentację :-)


Pośrednik odpowiedzialny zawodowo za wykonanie umowy pośrednictwa (licencja nr: 22439) Marcin Starczewski, tel.: 504 900 221

A może chcesz sprzedać nieruchomość i szukasz warunków do porównania? Skontaktuj się z naszym doradcą podanym w ofercie, który pomoże w przygotowaniu najlepszej strategii sprzedaży Twojego mieszkania.

Jako profesjonaliści możemy wspierać naszych Klientów w całym procesie sprzedaży, zakupu, wynajmu nieruchomości, także pomagając w negocjacjach czy doradzając szczegółowe zapisy w umowach, dbając o zabezpieczenie ich interesów.

Jeżeli potrzebujesz skorzystać z kredytu hipotecznego na zakup nieruchomości, również pomożemy go uzyskać w jednym z kilkudziesięciu banków i instytucji finansowych.

Potrzebujesz agenta lub chcesz uzyskać więcej informacji? Skontaktuj się z doradcą wskazanym przy ofercie.

Powyższa oferta nie stanowi oferty handlowej w rozumieniu art. 66 § 1 kodeksu cywilnego oraz innych właściwych przepisów prawnych. Informacje umieszczone w ofertach przekazywane są przez właścicieli nieruchomości i mogą ulegać zmianom. Staramy się, aby wszystkie oferty były jak najbardziej aktualne i odpowiadały stanowi rzeczywistemu.